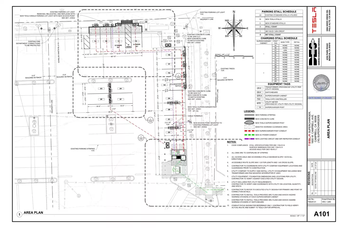
特斯拉全球首座真V4超充站动工:16个500千瓦极速桩入驻
9月23日最新消息,科技博主@MarcoRPi1爆料称,特斯拉全球首个完整版V4超级充电站已在美国加州坎贝尔市破土动工。
根据公示的施工许可证,该站点将部署16个V4超级充电桩,并首次配备专用的V4充电柜系统,这也是该站点区别于此前"半成品"V4站点的重要标志。

资料显示,特斯拉早在2024年就率先发布了V4充电桩设计,并在北美、欧洲和亚洲市场陆续推广。然而与之相匹配的V4充电柜却迟迟未能现身。
就像手机用户争论"NSA是否算真正的5G网络"一样,此前建设的V4充电站始终依赖上一代V3充电柜供电。这就导致虽然V4充电桩硬件支持更高功率,但在V3充电柜的限制下,初期最大输出功率仅为250千瓦,后来才升级至325千瓦(仅限特定车型)。

直到去年年底,特斯拉才正式发布新一代V4充电柜。新设备不仅能为乘用车提供高达500千瓦的充电功率,还能满足Tesla Semi电动卡车最高1.2兆瓦的充电需求。值得一提的是,新款V4充电柜在提升性能的同时,还显著缩小了体积,提高了安装便利性。
特斯拉此前承诺将在2025年第三季度建成首个配备完整V4系统的充电站。如今坎贝尔市的这个项目正按其规划的时间节点顺利推进。


相关攻略
5月17日,一则消息从大洋彼岸传来:特斯拉美国官网悄然更新了Model Y部分车型的价格标签。这是该车型进入2024年以来在美国市场的首次涨价,一个微妙的信号似乎正在浮现——持续了近两年的激进价格策略,可能来到了一个转折点。 具体来看,这次调价并非“一刀切”。长续航和高性能版本成为了主角。Model
特斯拉柏林超级工厂再次刷新生产纪录,迎来一个关键里程碑。根据官方社交媒体发布的最新消息,该工厂已成功实现第75万辆电动汽车整车下线,标志着其欧洲制造中心地位进一步巩固。 具体而言,这一重要成就于当地时间周一达成。从第50万辆到第75万辆的跨越,柏林超级工厂仅耗时13个月零11天。这意味着在过去近一年
5月6日,特斯拉在中国市场迈出了关键一步:正式向非特斯拉品牌的新能源车主,开放了超过1000座超级充电站以及400多座目的地充电站。这一网络覆盖了全国所有省份和直辖市,意味着无论你驾驶哪个品牌的电动车,现在都能更便捷地接入特斯拉的充电体系。 更值得关注的是,开放后的充电价格对所有人一视同仁,非特斯拉
在竞争激烈的汽车市场,高用户净推荐值(NPS)是衡量品牌成功的关键指标,它直接反映了用户是否愿意向他人推荐并再次购买。众多车企,尤其是汽车品牌,都将其视为核心追求。那么,究竟哪个品牌的产品能真正俘获用户芳心,让他们成为忠实的回头客?近期,标普全球汽车发布的2025年度品牌忠诚度排行榜,为我们揭晓了答
最近,特斯拉在中国市场迈出了一大步。官方正式宣布,面向所有品牌的新能源车主,开放了超过1400座充电站点。这其中,包含了1000多座超级充电站和400多座目的地充电站。对于习惯了“里程焦虑”的电动车用户来说,这无疑是个重磅消息。 最吸引人的,莫过于它的补能速度。特斯拉的超级充电桩峰值功率能达到250
热门专题
热门推荐
微星PRO MAX系列ATX 3 1全模组电源现已于京东平台全面上市。该系列精心规划了850W、1000W与1200W三档功率规格,全线产品均严格通过80PLUS白金能效认证,为用户带来高效节能的供电体验。首发期间,850W版本售价579元,1000W版本679元,1200W版本799元,参与晒单活
行业首款集成视觉能力的AI智能耳机即将面世。光帆科技近日正式宣布,其创新产品“光帆全感AI耳机”定于5月15日全面发售。这款耳机以“全感知、主动式、个性化”为核心定位,旨在彻底革新用户与可穿戴音频设备之间的交互模式。 本质上,它颠覆了传统耳机的被动响应模式。根据官方介绍,这款AI耳机能够主动感知并理
止损是交易中控制风险的关键手段,在币安等交易平台设置止损时,主要参考市场波动率、技术分析关键位以及个人风险承受能力。合理的止损应基于对价格走势的客观判断,而非情绪化决策,同时需结合仓位管理,避免因单次止损过大而影响整体资金安全。动态调整止损位以适应市场变化,是提升交易纪律性的重要环节。
过去两年,要问大模型最习惯用什么格式交付内容,答案多半是Markdown。 原因不难理解:Markdown足够干净,没有冗余格式,复制到文档、知识库、GitHub,甚至直接粘贴到微信公众号后台,基本都不会出问题。某种程度上,它已经被公认为AI时代最理想的标记语言。 不过,随着Agent时代的到来,M
距离2026-2027年度旗舰手机的大幕拉开,大约还有四个月时间。按照惯例,届时在全球舞台上率先亮相的主流旗舰,很可能依然是苹果的iPhone 18 Pro系列。 就在昨天(5月8日),知名爆料人Jon Prosser发布了iPhone 18 Pro Max的视频渲染图,与此同时,关于该系列手机的七





