CAD迷你看图如何导出JPG?CAD迷你看图导出JPG方法一览
想要了解cad迷你看图如何导出jpg格式的文件吗?别担心,iefans小编将为您详细讲解cad迷你看图导出jpg的具体步骤!
免费影视、动漫、音乐、游戏、小说资源长期稳定更新! 👉 点此立即查看 👈

首先,启动CAD迷你看图软件,然后通过点击“打开图纸”按钮,将您需要转换格式的图纸导入软件中。

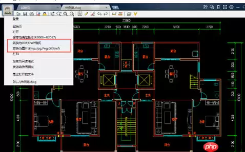
导入图纸后,在软件界面的左上角找到并点击“头像”按钮,如下图所示:

此时,您将看到弹出的选项,其中包括“转换为DXF,dwF格式”和“转换为图片(Bmp,Jpg,Png,Gif,Emf)”的功能。

最后,选择“转换为图片”选项,然后在“保存类型”中选择JPG格式,点击保存即可完成导出过程。
CAD迷你看图相关攻略推荐:
CAD迷你看图如何转换为PDF?转换为PDF的详细流程分享CAD迷你看图如何导出HPG?导出HPG方法说明CAD迷你看图如何导出JPG?导出JPG方法说明
相关攻略
以太坊资本外溢:TRON为何成为15 2亿美元稳定币新枢纽? 区块链世界的地壳运动从未停止,资本的流向便是其中最敏锐的震感。近期,一场规模惊人的资本迁徙正在上演:大量资金正从以太坊网络流出,涌入TRON生态。这不仅是简单的资产转移,更是一次深刻的行业风向标,揭示了用户对交易成本、网络效率与应用场景的
2026年,全球AI产业迎来关键转折点,大模型狂热逐渐退潮,核心叙事从技术军备竞赛转向商业化兑现。在这样的周期里,AI+CAD平台公司「品览科技」选择了一条相对另类的发展路径:没有追逐大模型风口,没
南方财经记者赵晓晨 广州报道如果说制造业是新型工业化的“主战场”,那么工业软件就相当于这个战场的“大脑与神经系统”,是定义产品、控制流程、优化决策并驱动整个制造体系智能化的核心数字基础。一方面,
IT之家 12 月 25 日消息,YouTube 频道 fpt 主播 Jon Prosser 昨日发布最新视频,基于上周曝光的 CAD 数据,制作了一段渲染视频,声称全角度展示苹果首款折叠 iPh
2025年全球十大虚拟币app平台排行为:OKX、Binance、火币、Coinbase、Kraken、KuCoin、Bitfinex、Gemini、Bitstamp、Bybit。这些平台因其多样性、高效性和安全措施而备受推崇,提供从现货到期货的多种交易方式,并支持广泛的加密货币种类,全球24 7客
热门专题
热门推荐
加密货币行业翘首以盼的监管里程碑,终于有了实质性进展。美国证券交易委员会(SEC)主席保罗·阿特金斯(Paul Atkins)近日证实,那份允许加密项目在早期获得注册豁免权的“安全港”框架提案,已经正式送抵白宫,进入了最终审查阶段。 在范德堡大学与区块链协会联合举办的数字资产峰会上,阿特金斯透露了这
微策略Strategy报告:第一季录得144 6亿美元浮亏 再斥资约3 3亿美元买进4871枚比特币 市场震荡的威力有多大?看看Strategy的最新季报就明白了。根据其最新向美国证管会(SEC)提交的8-K报告,受市场剧烈波动影响,这家公司所持的比特币在第一季度录得了一笔惊人的数字——144 6亿
稳定币巨头Tether的动向,向来是加密世界的风向标。这不,它向Web3基础设施的版图扩张,又迈出了关键一步。公司执行长Paolo Ardoino在社交平台X上透露,其工程团队正在全力“烹制”一个新项目——去中心化搜索引擎 “Hypersearch”。这个消息一出,立刻引发了行业的广泛猜想。 采用D
基地位于Coinbase旗下以太坊Layer2网络Base的Seamless Protocol,日前正式宣告了服务的终结。这个曾经吸引了超过20万用户的原生DeFi借贷协议,在运营不到三年后,终究没能跑赢时间。它主打的核心产品是Integrated Leverage Markets(ILMs)——一
PAAL代币揭秘:深度解析Web3社区治理的核心钥匙 在去中心化自治组织的浪潮中,谁真正掌握了项目的话语权?PAAL代币提供了一套系统化的答案。它不仅是生态内流转的价值媒介,更是开启链上治理大门的核心凭证。通过持有并质押PAAL代币,用户能够对协议升级、资金分配乃至战略方向等关键事务投出决定性的一票





